描述
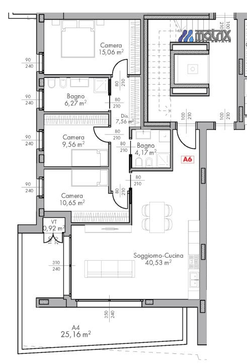
Appartamento Dolo Ve piano primo €.257.000, zona giorno 43 mq.
" Residence Limitless"
nella Zona Centrale di Dolo Ve a pochi passi dal Centro Storico
Visita il nostro sito.matrixconsult.it
Abitazioni di altissima qualità costruttiva, finiture curate che garantiscono un importante valore estetico e immutabilità nel tempo, un'opera d'arte da vivere, con particolare attenzione al tema della sostenibilità energetica e ambientale.
In palazzina di stile moderno in zona centrale comoda a tutti i servizi, appartamento in fase di costruzione al piano primo da:
Appartamenti in consegna per 02/2026
- ingresso soggiorno/angolo cottura di 43,00 mq.
- tre camere
- 2 bagni rispettivamente
- lavanderia
- ripostiglio
- ascensore
- garage posto auto
L'immobile viene costruito con l’utilizzo di materiali isolanti ad elevata resistenza alle vibrazioni, che consentono il fono-assorbimento ed un elevato comfort abitativo.
L'immobile è comprensivo di installazione di:
- Impianto fotovoltaico, combinato con pompa di calore,
- Riscaldamento pavimento
- pavimenti gres zona giorno, legno zona notte
- Tapparelle elettriche coimbentate
- Garage e posto auto privato
Predisposizioni:
- Impianto antifurto
- Impianto aria condizionata
- Impianto Ventilazione meccanica uno per ogni camera e uno per il soggiorno
NO GAS, cottura ad induzione.
Possibilità di personalizzare disposizioni interne e finiture.
Possibilità di visualizzare planimetrie e Render presso la nostra agenzia previo appuntamento tel. 049 7625413
Rif. VL32622 € 257.000
Classe energetica prevista A4 ipe 0,30
Visita www.matrixconsult.it
Mettiamo a disposizione un interior design che affianca i nostri clienti attraverso un percorso costante di miglioramento degli ambienti, interni ed esterni, rispondendo con entusiasmo alle varie esigenze estetiche e funzionali, adattandoli ai vari gusti e stili di vita.
Offriamo la consulenza e preventivo senza spese e costi di intermediazione per l'ottenimento di un mutuo o prestito da parte di consulenti di Società autorizzate.
Possibilità di richiesta fino al 100% del valore dell'immobile.
Alcuni esempi:
Mutuo €.200.000,00 durata 30 anni rata costante di €. 767,00
Mutuo €.250.000,00 durata 30 anni rata costante di €. 959,00
Mutuo €.300.000,00 durata 30 anni rata costante di €. 1.051,00
Le foto esposte sono proposte di arredamento con preventivo gratuito da parte dei nostri architetti, info in agenzia.

