Appartamento Dolo 3 camere Nuova costruzione

Descrizione

Appartamento Dolo Ve piano secondo €.268.000, tre camere zona giorno 43 mq.

" Residence Limitless" nella Zona Centrale di Dolo Ve a pochi passi dal Centro Storico

Visita il nostro sito.matrixconsult.it

Abitazioni di altissima qualità costruttiva, finiture curate che garantiscono un importante valore estetico e immutabilità nel tempo, un'opera d'arte da vivere, con particolare attenzione al tema della sostenibilità energetica e ambientale.

In palazzina di stile moderno in zona centrale comoda a tutti i servizi, appartamento in fase di costruzione al piano secondo da:

Appartamenti in consegna per 12/2025

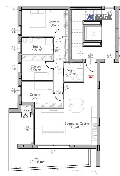
- ingresso soggiorno/angolo cottura di 43,00 mq.
- tre camere
- 2 bagni rispettivamente
- lavanderia
- ripostiglio
- ascensore
- garage posto auto

L'immobile viene costruito con l’utilizzo di materiali isolanti ad elevata resistenza alle vibrazioni, che consentono il fono-assorbimento ed un elevato comfort abitativo.

L'immobile è comprensivo di installazione di:
- Impianto fotovoltaico, combinato con pompa di calore,
- Riscaldamento pavimento
- pavimenti gres zona giorno, legno zona notte
- Tapparelle elettriche coimbentate
- Garage e posto auto privato

Predisposizioni:
- Impianto antifurto
- Impianto aria condizionata
- Impianto Ventilazione meccanica uno per ogni camera e uno per il soggiorno

NO GAS, cottura ad induzione.
Possibilità di personalizzare disposizioni interne e finiture.
Possibilità di visualizzare planimetrie e Render presso la nostra agenzia previo appuntamento tel. 049 7625413

Rif. VL32207 € 268.000
Classe energetica prevista A4 ipe 0,30
Visita www.matrixconsult.it

Offriamo la consulenza e preventivo senza spese e costi di intermediazione per l'ottenimento di un mutuo o prestito da parte di consulenti di Società autorizzate.
Possibilità di richiesta fino al 100% del valore dell'immobile.
Alcuni esempi:
Mutuo €.200.000,00 durata 30 anni rata costante di €. 767,00
Mutuo €.250.000,00 durata 30 anni rata costante di €. 959,00
Mutuo €.300.000,00 durata 30 anni rata costante di €. 1.051,00

Le foto esposte sono proposte di arredamento con preventivo gratuito da parte dei nostri architetti, info in agenzia.
Mettiamo a disposizione un interior design che affianca i nostri clienti attraverso un percorso costante di miglioramento degli ambienti, interni ed esterni, rispondendo con entusiasmo alle varie esigenze estetiche e funzionali, adattandoli ai vari gusti e stili di vita.

Ambienti

Camere 3
Bagni 2
Soggiorno angolo cottura
Ripostigli 1
Terrazzi 1
Posto auto
Garage

Livelli & Comfort

Livelli Piano intermedio
Riscaldamento autonomo
Riscaldamento a pavimento
Predisposizione aria condizionata
Pannelli fotovoltaici
Riscaldamento termopompa
Ascensore
Predisposizione allarme
Tapparelle motorizzate
Porta blindata

Ape

2
2
A4
0.3
n/d

Dettagli

Prezzo 268.000 €
Riferimento VL32627
Comune Dolo
Zona Dolo
Contratto Vendita
Mq 135
C.E
I.P.E 0.3 kWh/mq/anno