Appartamento Dolo con giardino 270 mq garage doppio Cl A4

Descrizione

Appartamento Dolo Ve piano terra €.339.000, zona giorno 61 mq. giardino 270 mq. garage doppio.

Appartamento in pronta consegna

" Residence Limitless" nella Zona Centrale di Dolo Ve a pochi passi dal Centro Storico

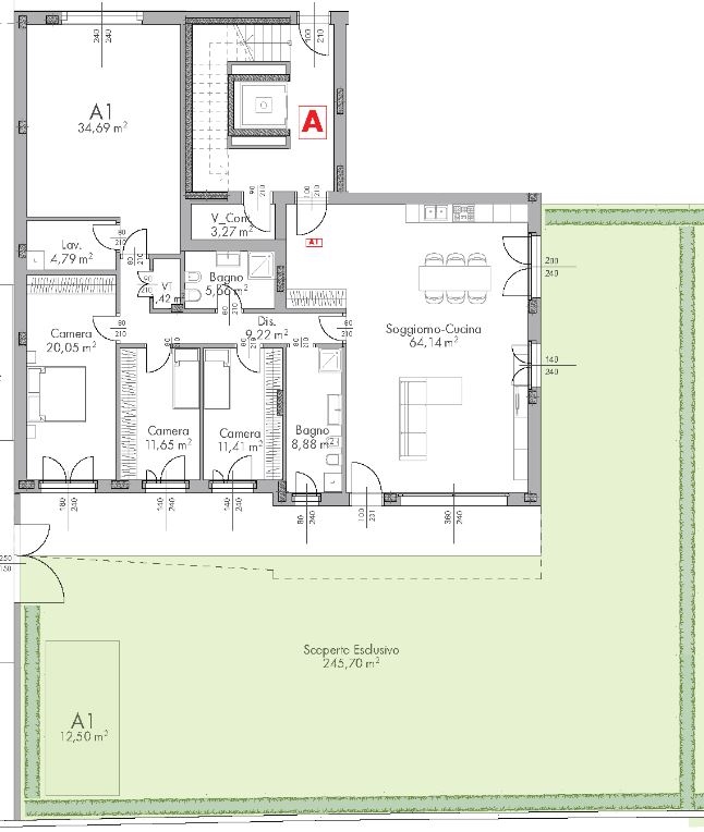
In palazzina di stile moderno in zona centrale comoda a tutti i servizi, appartamento in fase di costruzione al piano terra con ingresso indipendente e scoperto di competenza composto da:

- ingresso soggiorno/angolo cottura di 61,00 mq, porte scorrevoli che portano ad un giardino di 270 mq.
- tre camere
- 2 bagni
- lavanderia
- ripostiglio
- ascensore
- garage doppio 32,00 mq posto auto privato.
- POSSIBILITA' DI PISCINA COSTO A PARTE

L'immobile viene costruito con l’utilizzo di materiali isolanti ad elevata resistenza alle vibrazioni, che consentono il fono-assorbimento ed un elevato comfort abitativo.

L'immobile è comprensivo di installazione di:
- Impianto fotovoltaico, combinato con pompa di calore,
- Riscaldamento pavimento
- pavimenti gres zona giorno, legno zona notte
- Tapparelle elettriche coimbentate
- Garage e posto auto privato

Predisposizioni:
- Impianto antifurto
- Impianto aria condizionata
- Impianto Ventilazione meccanica uno per ogni camera e uno per il soggiorno

NO GAS, cottura ad induzione.
Possibilità di personalizzare disposizioni interne e finiture.
Possibilità di visualizzare planimetrie e Render presso la nostra agenzia previo appuntamento tel. 049 7625413

Rif. VL32700 € 339.000
Classe energetica prevista A4 ipe 0,30
Visita www.matrixconsult.it
Mettiamo a disposizione un interior design che affianca i nostri clienti attraverso un percorso costante di miglioramento degli ambienti, interni ed esterni, rispondendo con entusiasmo alle varie esigenze estetiche e funzionali, adattandoli ai vari gusti e stili di vita.
Offriamo la consulenza e preventivo senza spese e costi di intermediazione per l'ottenimento di un mutuo o prestito da parte di consulenti di Società autorizzate.
Possibilita di richiesta fino al 100% del valore dell'immobile.
Alcuni esempi:
Mutuo €.200.000,00 durata 30 anni rata costante di €. 767,00
Mutuo €.250.000,00 durata 30 anni rata costante di €. 959,00
Mutuo €.300.000,00 durata 30 anni rata costante di €. 1.051,00
Le foto esposte sono proposte di arredamento con preventivo gratuito da parte dei nostri architetti, info in agenzia.

Ambienti

Camere 3
Bagni 2
Soggiorno
Cucina
Ripostigli 1
Giardino
Posto auto
Garage doppio
Lavanderia

Livelli & Comfort

Livelli Piano terra
Riscaldamento autonomo
Riscaldamento a pavimento
Predisposizione aria condizionata
Pannelli fotovoltaici
Riscaldamento termopompa
Ascensore
Ingresso indipendente
Predisposizione allarme
Tapparelle motorizzate
Porta blindata

Ape

2
2
A4
0.3
n/d

Dettagli

Prezzo 339.000 €
Riferimento VL32700
Comune Dolo
Zona Dolo
Contratto Vendita
Mq 160
C.E
I.P.E 0.3 kWh/mq/anno